Home
About
Communities
Blog
Design Centre
Careers
Contact Us
Register
Home
About
Communities
Blog
Design Centre
Careers
Contact Us
Register
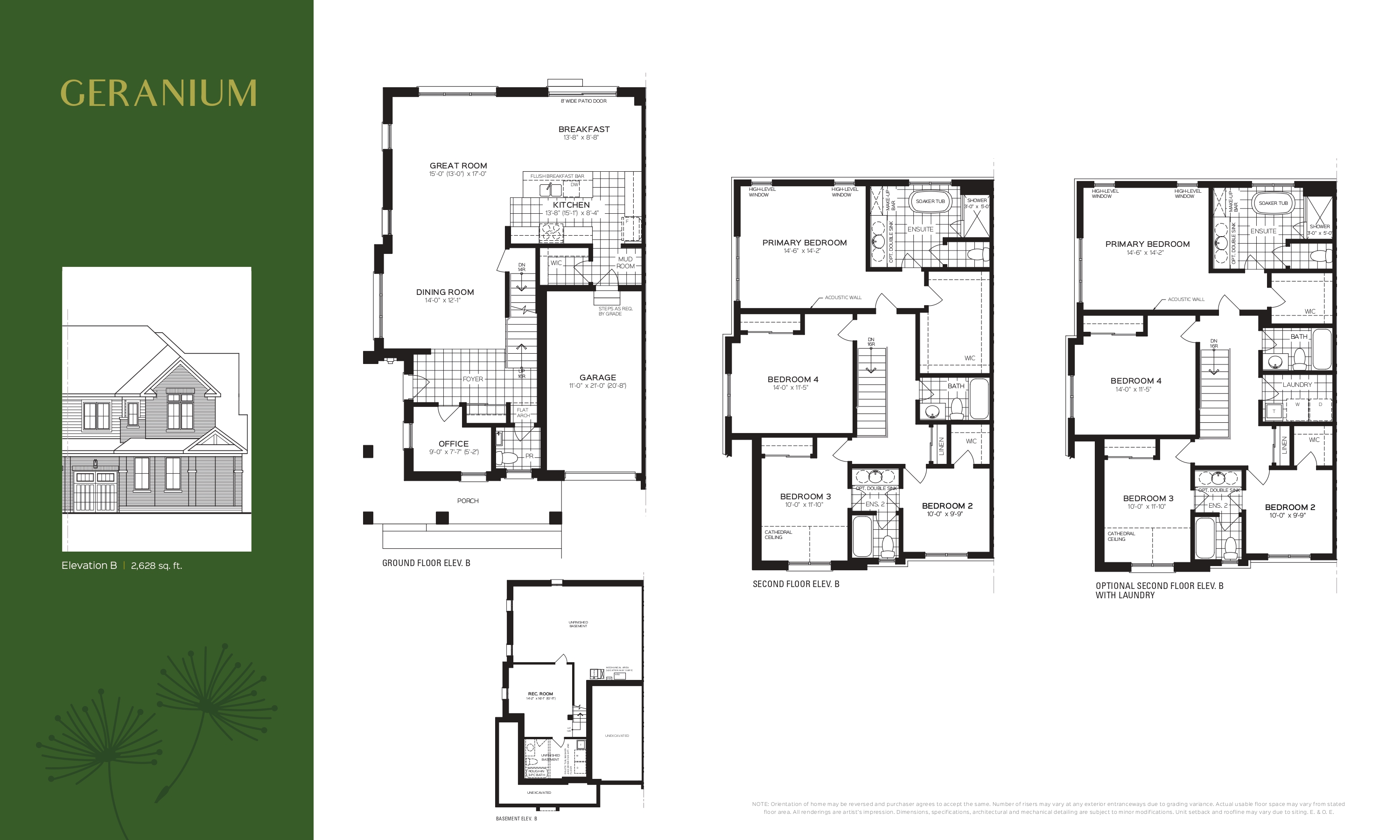
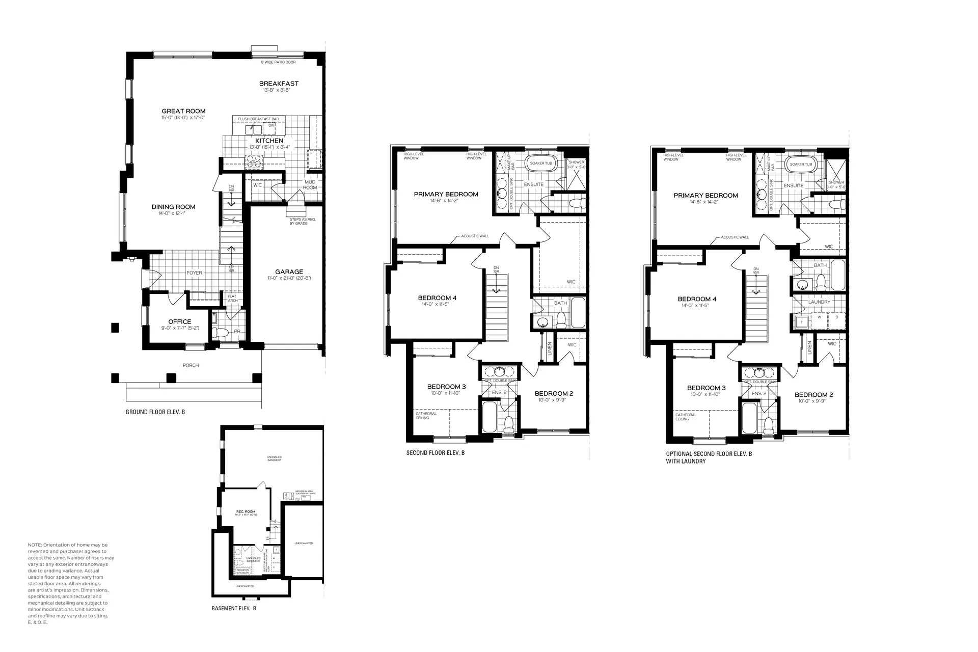
Geranium
Elevation B
2628 Sq. Ft.
4 Bed | 3.5 Bath
Brochure
Towns Features and Finishes
Elevation B
Floorplan
Register now to keep up to date for all upcoming communities!
Register
Now